Отложить
Отложено
Сравнить
В сравнении
Артикул
35/10.1660.GPB
863 руб./шт
Есть в наличии
-
+
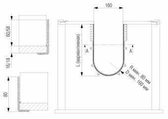
Профиль д/ящика под раковиной L=680мм, h=60мм, графит
Используется для защиты от влаги и пыли цокольного пространства. Защищает цоколь из ЛДСП или МДФ от воздействия влаги
- Описание
-
Характеристики
Бренд Volpato (Италия) Цвет Графит В комплект входит Пластиковый профиль,пара креплений к задней стенке Технические данные Материал – гибкий пластик – подходит под любую форму выреза. Регулируемая длина –за счет обрезки профиля. Страна ИТАЛИЯ Вес нетто 0.196


